Tonale
atelier d’architecture
Tonale

















Création d'un espace bien-être et d'une piscine extérieure
Un hôtel **** souhaite intégrer un espace bien-être au cœur de son domaine paysager.
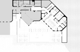
Le projet s’implante dans un ancien local technique brut de béton, situé en sous-sol aveugle. Sa transformation a nécessité des travaux de terrassement avec d’importants décaissés, permettant la création de baies vitrées ouvrant le volume et lui donnant accès au rez-de-jardin.
Les espaces ainsi requalifiés accueillent désormais un spa complet : vestiaires, salle de soins, hammam, sauna, bain à remous, tisanerie et espace de détente, largement ouverts sur le parc.
En continuité directe, une piscine extérieure a été implantée sur une nouvelle terrasse orientée plein parc. Les marches immergées, disposées dans la longueur du bassin, permettent une entrée progressive dans l’eau face au paysage.
Le projet associe une réhabilitation technique complexe à une intervention architecturale résolument orientée vers son environnement.
Lieu
Statut Programme Surface | Hauts-de-France |
|
|
Création d'un espace bien-être et d'une piscine extérieure
Un hôtel **** souhaite intégrer un espace bien-être au cœur de son domaine paysager.
Le projet s’implante dans un ancien local technique brut de béton, situé en sous-sol aveugle. Sa transformation a nécessité des travaux de terrassement avec d’importants décaissés, permettant la création de baies vitrées ouvrant le volume et lui donnant accès au rez-de-jardin.
Les espaces ainsi requalifiés accueillent désormais un spa complet : vestiaires, salle de soins, hammam, sauna, bain à remous, tisanerie et espace de détente, largement ouverts sur le parc.
En continuité directe, une piscine extérieure a été implantée sur une nouvelle terrasse orientée plein parc. Les marches immergées, disposées dans la longueur du bassin, permettent une entrée progressive dans l’eau face au paysage.
Le projet associe une réhabilitation technique complexe à une intervention architecturale résolument orientée vers son environnement.


















Lieu | Hauts-de-France
|