Tonale
atelier d’architecture
Tonale

© Tonale





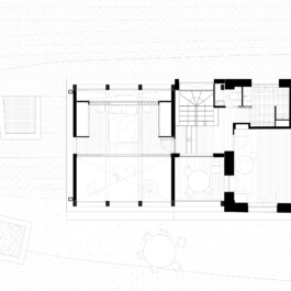
Extension de maison
Cette maison d'habitation normande à colombages doit être agrandie pour accueillir une pièce de vie et une suite parentale. Située sur un terrain inondable, la nouvelle construction est surélevée. La structure composée d'une ossature mixte béton/bois, est isolée par l'extérieur grâce au béton de chanvre, recouvert d'un enduit argile-chaux. La couche isolante travaillée dans son épaisseur sur les encadrements, pemet de mettre en scène les ouvertures sur le paysage.
Lieu | Normandie |
Extension de maison
Cette maison d'habitation normande à colombages doit être agrandie pour accueillir une pièce de vie et une suite parentale. Située sur un terrain inondable, la nouvelle construction est surélevée. La structure composée d'une ossature mixte béton/bois, est isolée par l'extérieur grâce au béton de chanvre, recouvert d'un enduit argile-chaux. La couche isolante travaillée dans son épaisseur sur les encadrements, pemet de mettre en scène les ouvertures sur le paysage.


© Tonale





Lieu | Normandie |