Tonale
atelier d’architecture
Tonale




1, 3, 5 © Chloé Bruhat 2, 4 © Tonale

Espace de massage
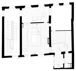
Quelques interventions ont suffi pour transformer cet appartement haussmannien en espace de soins du visage. Les murs et les plafonds sont peints d'un orange brûlé enveloppant. Une structure en vinyle doré est placée en apesanteur au-dessus du lit, permettant d'offrir un dernier regard marquant à celui qui vient se faire masser. L'intimité de l'espace du vestiaire est créée par un rideau épais, qui s'enroule sur lui-même. Le parquet Versailles d'origine est laissé brut. L'importante hauteur sous plafond est mise en valeur par la présence de voilages fluides qui filtrent la lumière et les vues des fenêtres imposantes.
Lieu | Île-de-France Rideaux Maison Martin Morel |
Espace de massage
Quelques interventions ont suffi pour transformer cet appartement haussmannien en espace de soins du visage. Les murs et les plafonds sont peints d'un orange brûlé enveloppant. Une structure en vinyle doré est placée en apesanteur au-dessus du lit, permettant d'offrir un dernier regard marquant à celui qui vient se faire masser. L'intimité de l'espace du vestiaire est créée par un rideau épais, qui s'enroule sur lui-même. Le parquet Versailles d'origine est laissé brut. L'importante hauteur sous plafond est mise en valeur par la présence de voilages fluides qui filtrent la lumière et les vues des fenêtres imposantes.





1, 3, 5 © Chloé Bruhat 2, 4 © Tonale

Lieu | Île-de-France Rideaux Maison Martin Morel |