Tonale
atelier d’architecture
Tonale











© Élise Helm

Appartement Hermel
Dans cet appartement situé derrière Montmartre, la conservation du style haussmannien préexistant est assumée. La circulation est redistribuée en façade pour profiter de la séquence des fenêtres en enfilade. Au style haussmannien a été superposée une lecture plus contemporaine, travaillée dans le rapport entre les petites échelles. L'omniprésence du bois est contrastée par des touches métalliques brossées et chromées. Le choix des pièces de mobilier de seconde main et le travail avec quelques artistes/artisans participent à définir l'atmosphère de ce lieu de vie. Le mélange des styles fait cohabiter des rideaux faits main aux tissus upcyclés, à côté de pièces chinées de design italien.
Lieu | Île-de-France Rideaux Rémi Marilleau |
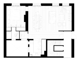
Appartement Hermel
Dans cet appartement situé derrière Montmartre, la conservation du style haussmannien préexistant est assumée. La circulation est redistribuée en façade pour profiter de la séquence des fenêtres en enfilade. Au style haussmannien a été superposée une lecture plus contemporaine, travaillée dans le rapport entre les petites échelles. L'omniprésence du bois est contrastée par des touches métalliques brossées et chromées. Le choix des pièces de mobilier de seconde main et le travail avec quelques artistes/artisans participent à définir l'atmosphère de ce lieu de vie. Le mélange des styles fait cohabiter des rideaux faits main aux tissus upcyclés, à côté de pièces chinées de design italien.












© Élise Helm

Lieu
| Île-de-France |